Complexul de Apartamente Mr. Lucass din Constanța
Cu sediul în Constanța, zona Palazu pe Strada Barbu Catargi, Complexul de Apartamente Mr. Lucass se distinge prin designul său modern și calitatea construcției. De la priveliștile spectaculoase la facilitățile oferite, suntem dedicați să oferim o experiență de locuire superioară.
.webp&w=1080&q=75)
Despre noi

Cu o locație invidiată și finalizare în iulie 2025, oferim un cămin și un stil de viață deosebit.
Situat în Constanța, zona Palazu, Complexul de Apartamente Mr. Lucass se remarcă prin design modern și construcție de calitate.
De la priveliști spectaculoase la facilități, ne dedicăm oferirii unei experiențe de locuire superioare.
Predare la cheie, fără loc de parcare inclus. Rezervați-vă un loc în această comunitate exclusivistă.
Locuri de parcare disponibile la 10,000 €, cu 12 locuri supraterane în complex.
Clădirea are compartimentare cu BCA (CELCO) și tâmplărie Barrier 75 cu feronerie RotoNX și izolare acustică de până la 44dB.
Dotată cu lift și recepție la intrare de 29mp la parter. Fațadă din placare cu polistiren, lemn și rastel din lemn/metal înierbat.
Alte beneficii:
- • Spațiu verde amenajat
- • Loc de joacă pentru copii
- • Acces rampă persoane cu dizabilități
- • Platformă biciclete în zona accesului la bloc
Galerie
Apartamente
2 Camere

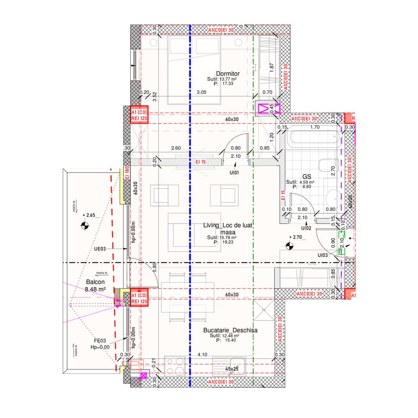
2 Camere - Vedere Laterală
Suprafață utilă: 55 m² (8.49 m² balcon inclus)
Etaj: 1
Preț final: 110,000 € + TVA

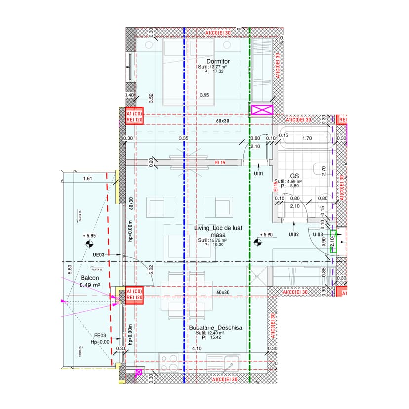
2 Camere - Vedere Laterală
Suprafață utilă: 55 m² (8.49 m² balcon inclus)
Etaj: 2
Preț final: 110,000 € + TVA
3 Camere

3 Camere - Vedere Spate
Suprafață utilă: 73.1 m² (5.52 m² balcon inclus)
Etaj: 1

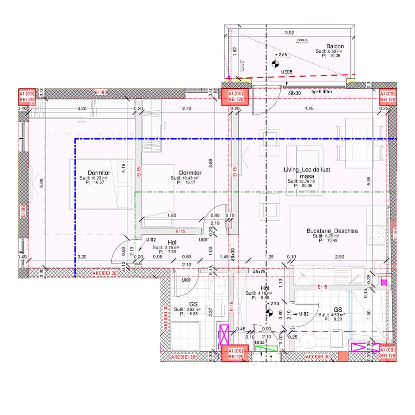
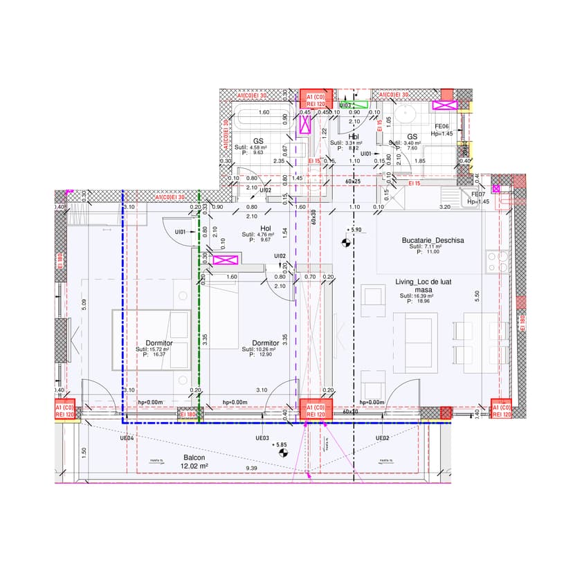
3 Camere - Vedere Frontală/Stradală
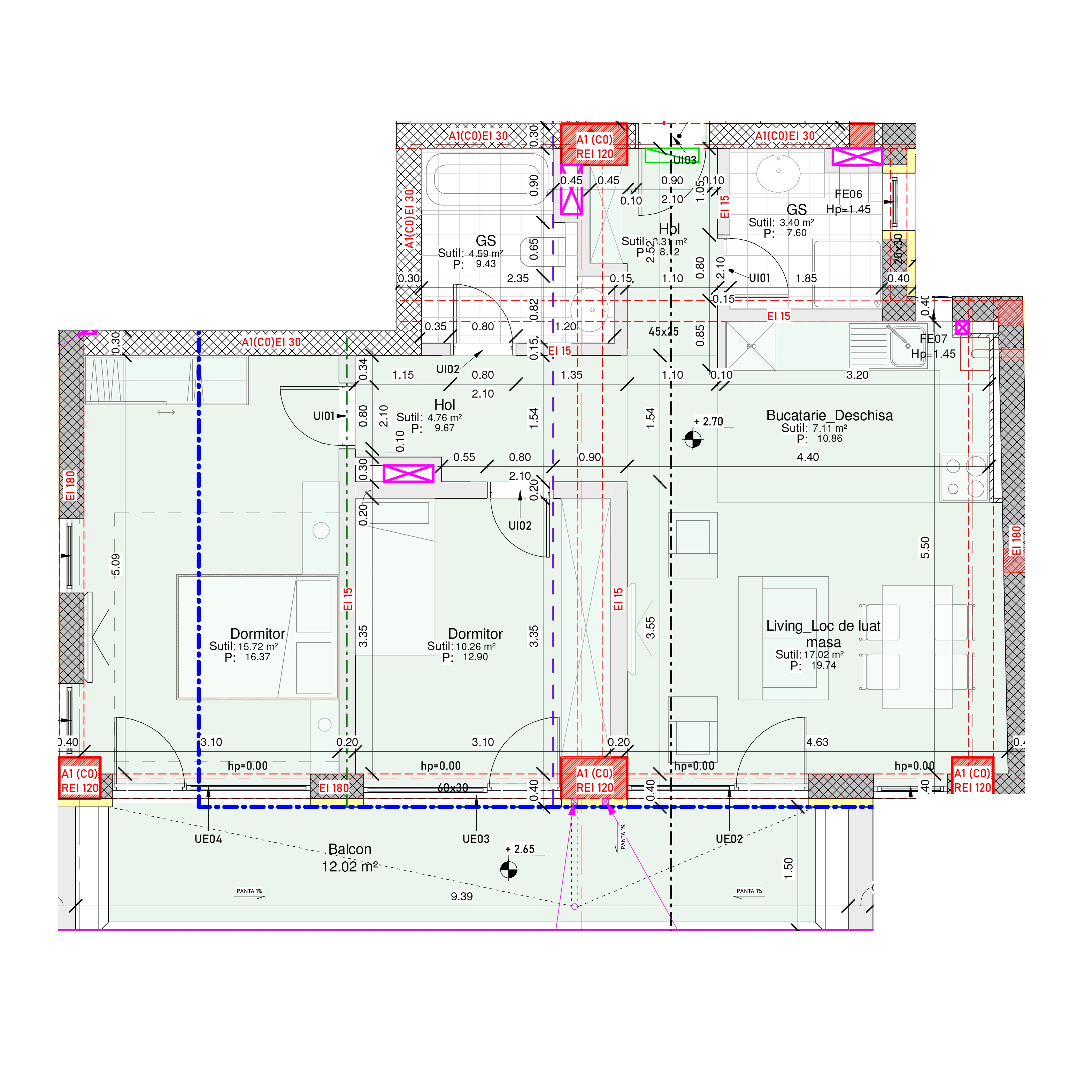
Suprafață utilă: 77.55 m² (12.02 m² balcon inclus)
Etaj: 1
Preț final: 171,000 € + TVA

3 Camere - Vedere Spate
Suprafață utilă: 73.1 m² (5.52 m² balcon inclus)
Etaj: 2
Preț final: 147,000 € + TVA

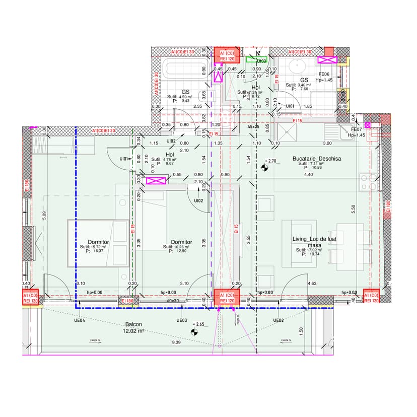
3 Camere - Vedere Frontală/Stradală
Suprafață utilă: 77.55 m² (12.02 m² balcon inclus)
Etaj: 2
Preț final: 171,000 € + TVA

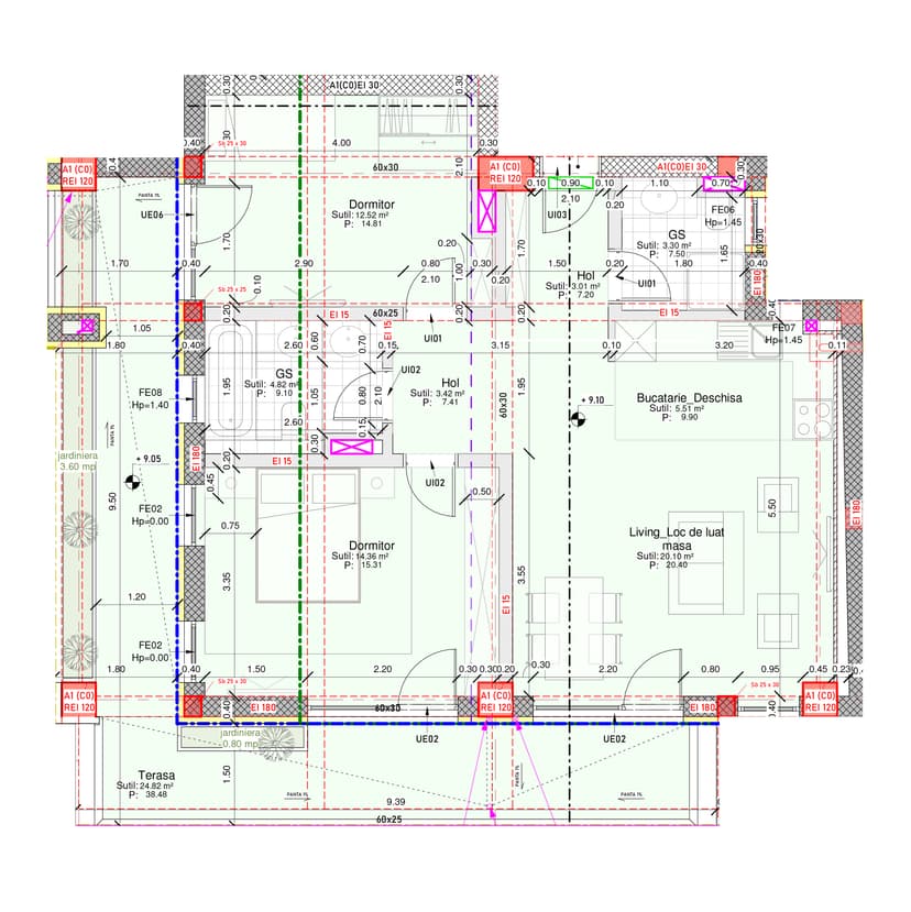
3 Camere - Vedere Frontală/Stradală
Suprafață utilă: 67.04 m² + 24.82 m² terasă
Etaj: 3

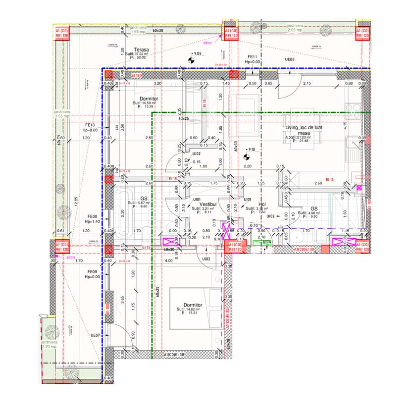
3 Camere - Vedere Spate
Suprafață utilă: 60.85 m² + 37.22 m² terasă
Etaj: 3
Preț final: 160,000 € + TVA

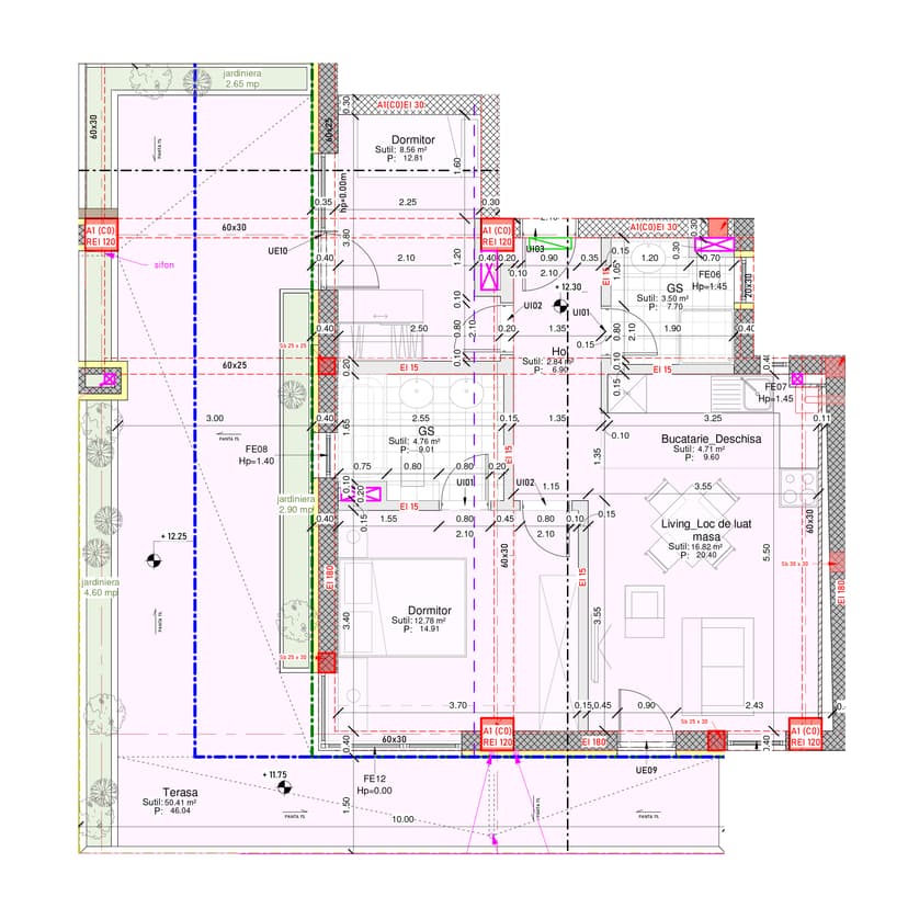
3 Camere - Vedere Frontală/Stradală
Suprafață utilă: 53.96 m² + 50 m² terasă
Etaj: 4
Preț final: 169,000 € + TVA
Studio

Studio - Vedere Spate
Suprafață utilă: 36.66 m² + 60 m² terasă
Etaj: 4
Preț final: 134,000 € + TVA